Level 2, 365 Lonsdale St, Melbourne, VIC 3000

99 Derby Road, Sunshine VIC 3020, Australia

CLAYWORKS

Clayworks là một cộng đồng đô thị hiện đại được định hình bởi câu chuyện di sản của nó. Được xây dựng trên nền tảng của một trong những nhà máy sản xuất gốm sứ lớn nhất ở phía Tây Melbourne trước đây, những khu dân cư được thiết kế hiện đại và các tiện ích công cộng phong phú đều mang đậm dấu ấn thủ công và chất liệu đất sét thấm sâu vào nền móng của chúng. Kết hợp truyền thống cơ sở với lối sống hiện đại, Clayworks là một khu phố đa dạng và được kết nối một cách chu đáo, được xây dựng dựa trên những lý tưởng cổ điển và được thực hiện bởi một đội ngũ từng đoạt giải thưởng.

Tổng quan

Tinh Hoa Melbourne

Clayworks được định hình bởi di sản, để trở thành một cộng đồng đô thị năng động, cân bằng giữa truyền thống và sự đổi mới. Đặt trọng tâm vào sự kết nối như nền tảng của những khu phố thịnh vượng, những ngôi nhà rộng rãi và tràn ngập ánh sáng, không gian xanh phong phú và các tiện ích chung hào phóng đã được quy hoạch tỉ mỉ để nuôi dưỡng những mối liên kết này.

Tên dự án Clayworks
Loại hình Nhà phố hiện đại
Vị trí Phía Tây Melbourne
Pháp lý Sở hữu vĩnh viễn
Quy hoạch Khu dân cư đồng bộ
Thiết kế Hiện đại, tối ưu công năng
Vị trí

Trung tâm mới phía Tây Melbourne

Với vị trí địa lý thuận lợi gần các phương tiện giao thông, doanh nghiệp thương mại và cơ sở hạ tầng cộng đồng thiết yếu, Sunshine sẽ sớm được công nhận là một thành phố tương lai thực sự. Nằm ở trung tâm của Tuyến đường sắt nối sân bay (Airport Rail Link), tuyến đường này sẽ sớm kết nối khu trung tâm thành phố (CBD) với sân bay Tullamarine, và Tuyến đường sắt ngoại ô (Suburban Rail Link) sẽ kết nối phía tây với phía bắc và phía đông Melbourne, Sunshine đang định hình một bản sắc mới được định hình bởi cả quá khứ năng động và tiềm năng tương lai to lớn. Khả năng tiếp cận chiến lược và thuận lợi mà các tuyến đường sắt này mang lại cho các cơ sở y tế, giáo dục và cơ sở hạ tầng chính phủ sẽ hỗ trợ tăng trưởng việc làm mạnh mẽ và nuôi dưỡng một hành lang tăng trưởng đang bùng nổ.

450m - trạm tàu Sunshine
5-10 phút - Các trung tâm thương mại
10-15 phút - các trường đại học
15-20 phút - Sân bay Melbourne

NỘI THẤT & THIẾT KẾ

Hayball mang đến chuyên môn thiết kế từng đoạt giải thưởng và phong cách thẩm mỹ vượt thời gian đặc trưng của mình cho Clayworks. Các căn hộ nổi bật bởi chất liệu nhiều lớp và vẻ đẹp tự nhiên không hoàn hảo đặc trưng của đất sét. Hình dáng tổng thể của các tòa nhà tiếp tục câu chuyện của khu đất, mang đến vẻ đẹp thanh thoát, mang tính điêu khắc cho kiến ​​trúc. Các căn nhà phố có mái hình răng cưa gợi nhớ đến những tòa nhà công nghiệp từng sừng sững tại đây. Gam màu sáng, trung tính làm nổi bật không gian rộng rãi vốn có của nội thất, trong khi vật liệu tự nhiên và các chi tiết thủ công biến những căn hộ này thành những chốn nghỉ dưỡng thực sự.

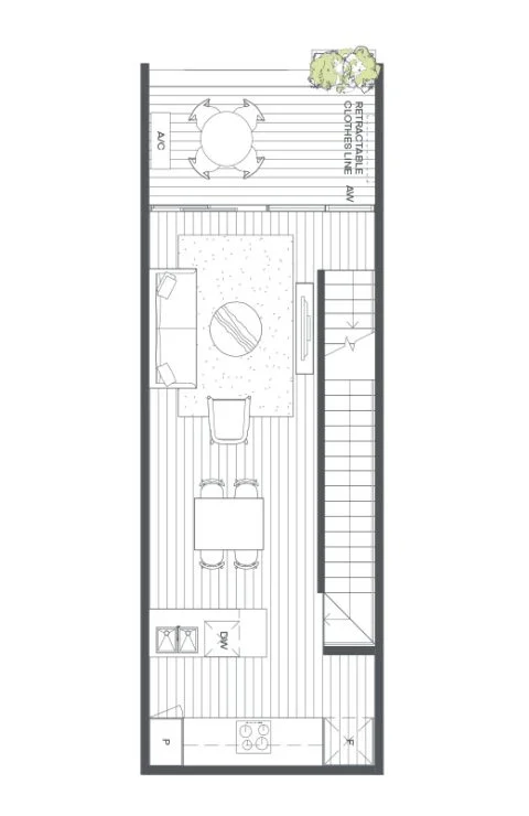
Mặt bằng dự án

floor one
floor two
ground floor
ĐƯỢC THIẾT KẾ CHO CỘNG ĐỒNG

Tiện ích đa dạng

Clayworks tọa lạc tại trung tâm khu vực phát triển nhanh nhất của Melbourne. Clayworks hòa nhập một cách liền mạch vào cảnh quan đường phố ngoại ô hiện có của Sunshine đồng thời nâng tầm khu vực này một cách tinh tế. Kế thừa tinh thần kiên cường đã giúp khu vực này phát triển mạnh mẽ, Clayworks mang đến một lối sống toàn diện. Được bao quanh bởi cơ sở hạ tầng làm nên một khu ngoại ô tuyệt vời – giao thông thuận tiện, ẩm thực hấp dẫn, nhiều cửa hàng bán lẻ, giáo dục đa dạng, không gian xanh tươi đẹp và mạng lưới y tế lớn nhất phía tây Melbourne – Clayworks là một cộng đồng yên tĩnh, nằm ngay trung tâm của mọi thứ.

Tiến độ thanh toán

Khi mua nhà phố Clayworks, khách hàng chỉ cần thanh toán trước 10% tại thời điểm ký hợp đồng. Phần 90% còn lại sẽ được thanh toán khi hoàn tất bàn giao nhà.

Bên cạnh đó, khách hàng sẽ phát sinh một số khoản thuế và chi phí theo quy định của pháp luật Úc, bao gồm phí FIRB, phí luật sư, phí chuyển nhượng và thuế trước bạ,…

CÂU HỎI THƯỜNG GẶP

FAQ

CÂU HỎI THƯỜNG GẶP

FAQ

Mua nhà có được định cư?

Mua nhà là một cột mốc trong quá trình định cư, thể hiện bạn có đủ năng lực tài chính để chính phủ tin tưởng vào hồ sơ xin định cư của bạn. Nhưng kèm vào đó bạn cần mang tinh thần đóng góp cho quốc gia bằng năng lực cụ thể trong một lĩnh vực làm việc hoặc kinh doanh hoặc tạo công ăn việc làm cho công dân. Cũng như cần đảm bảo một số tố chất của công dân Úc như trình độ tiếng Anh và am hiểu về lịch sử Úc, v.v… Mua nhà là một trong những điều kiện tốt để định cư, không phải toàn bộ điều kiện đủ để định cư.

Cả hai đối tượng đều được vay mua nhà như sau:

1. Người Việt đã có quốc tịch.
2. Người nước ngoài hoặc người Việt chưa có quốc tịch.

Mức vay tùy thuộc vào đối tượng và ngân hàng hỗ trợ dao động từ 60% – 80% giá trị tài sản. Tối đa vay được là 2 triệu đô Úc, với tối đa 25 năm. Không bị phạt tất toán trước hạn.

Có. Du học sinh Việt có đủ quyền để mua và sở hữu nhà.

Ngoài giá mua, bạn cũng cần tính đến thuế mua bán, phí dịch vụ môi giới, chi phí chuyển đổi tiền tệ (nếu cần), và chi phí duy trì bất động sản,…

Phí FIRB (Foreign Investment Review Board) là một loại phí áp dụng cho các đầu tư từ người nước ngoài vào bất động sản Úc. Cụ thể, người nước ngoài cần phải nộp một khoản phí FIRB khi đặt cọc hoặc mua một tài sản ở Úc. Phí này thường tăng theo giá trị của tài sản và mục đích sử dụng.

Thông thường, FIRB sử dụng một bảng giá phí dựa trên giá trị tài sản và loại tài sản (như nhà ở, đất đai, doanh nghiệp, etc.). Phí FIRB nhằm kiểm soát và đảm bảo rằng các đầu tư từ người nước ngoài không gây ra ảnh hưởng lớn đối với thị trường bất động sản Úc và lợi ích quốc gia. Đối với thông tin cụ thể về mức phí, thường cần kiểm tra các quy định FIRB hiện hành và bảng giá phí được công bố trên trang web của FIRB.